Final 3d Rendering.jpg
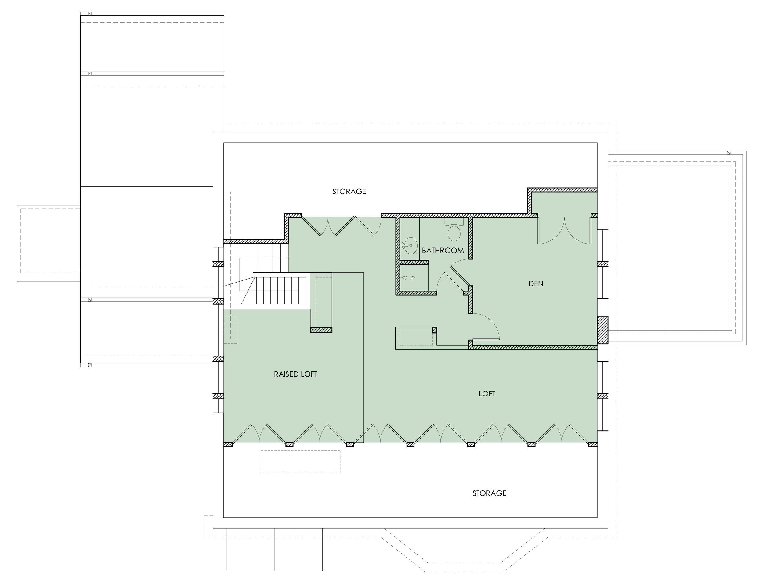
Attic Loft Plan.jpg
Hoenig - Existing Photo.jpg
prev / next